-
2022-12-02干式變壓器怎樣通過各種聲音的異常來判斷故障
-
2022-12-02干式變壓器安裝要注意問題
-
2022-12-02上海明翰介紹干式變壓器并聯均流技術
-
2022-12-02明翰變壓器淺談變壓器的規格和型號是什么?規格和型號是如何制定的呀?
電抗器系列
一、產品概述
為了改善電力系統改善功率因數,通常采用并聯電容器組來補償電力系統的無功功率。為了限制電力系統高次諧波電流引起的電容器組通過電流及電容器的合閘涌流,保護電容器組安全運行,通常在電容器組上加裝串聯電抗器。本產品能在3√2UN端電壓峰值下及1.35IN額定電流下正常連續運行,也能在三次和五次諧波電流含量均不大于35%的總電流有效值為1.2IN額定電流下連續運行。串聯電抗器與電容器在串聯聯結,并聯電容器組通常聯結成星形,串聯電抗器可以聯結在線端,也可以聯結在中性點端。
二、產品特點
1.線圈用玻璃絲包線繞制,真空狀態下用環氧樹脂不加填料澆注而成,固化后形成堅固的橢圓形整體,機械強度高,局部放電小,并且留有散熱氣道,線圈有良好的散熱性能。線圈采用分段圓筒式結構,層間電壓低,過電壓能力強。繞組中的絕緣材料和導體的膨脹系數接近,當工作溫度發生變化時,線圈表面不會龜裂。
2.鐵芯采用冷軋晶粒取向硅鋼片,鐵芯片用喬格線自動剪切完成,加工精度高,具有毛刺小、規則均勻等優點。鐵芯采用直接縫,疊片整齊優美,表面平整,并且整體浸漆,更進一步有效降低電抗器噪音水平。
3.電抗器外形尺寸參考標準柜體尺寸設計,體積小、接線方便,可為用戶提供單面或雙面出線的產品。
三、執行標準
JB/T5346-1998《串聯電抗器》
GB/T10229-1988《電抗器》
DL/T462-1992《高壓并聯電容器用串聯電抗器訂貨技術條件》
IEC289-1988《電抗器》
四、型號說明
五、使用環境條件
1.海拔高度不超過1000米;
2.運行環境溫度-25℃至+45℃,相對濕度不超過90%;
3.周圍無有害氣體,無易燃易爆物品;
4.周圍環境應有良好的通風條件。
六、性能參數
額定電壓:6kV、10kV
額定頻率:50Hz、60Hz
絕緣等級:F級
絕緣水平:Li75AC35
|
型號 |
電容容量(Kvar) |
額定電壓kV |
電抗率% |
端電壓V |
額定電流A |
額定電抗Ω |
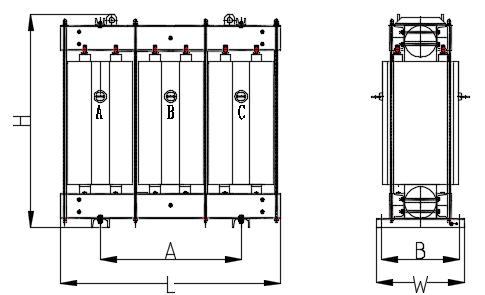
外形尺寸mm(L*W*H) |
安裝尺寸mm(A×B) |
重量Kg |
|
CKSC-6/11-6% |
100 |
11/√3 |
6 |
381.1 |
5.25 |
72.60 |
675×350×610 |
430×280 |
140 |
|
CKSC-9/11-6% |
150 |
11/√3 |
6 |
381.1 |
7.87 |
48.40 |
675×350×660 |
430×280 |
160 |
|
CKSC-12/11-6% |
200 |
11/√3 |
6 |
381.1 |
10.50 |
36.30 |
675×350×760 |
430×280 |
180 |
|
CKSC-18/11-6% |
300 |
11/√3 |
6 |
381.1 |
15.75 |
24.20 |
720×350×740 |
430×280 |
210 |
|
CKSC-24/11-6% |
400 |
11/√3 |
6 |
381.1 |
21.00 |
18.15 |
720×350×790 |
430×280 |
230 |
|
CKSC-27/11-6% |
450 |
11/√3 |
6 |
381.1 |
23.62 |
16.13 |
780×400×740 |
500×320 |
272 |
|
CKSC-30/11-6% |
500 |
11/√3 |
6 |
381.1 |
26.25 |
14.52 |
780×400×800 |
500×320 |
295 |
|
CKSC-36/11-6% |
600 |
11/√3 |
6 |
381.1 |
31.50 |
12.10 |
820×400×850 |
530×320 |
310 |
|
CKSC-45/11-6% |
750 |
11/√3 |
6 |
381.1 |
39.37 |
9.68 |
830×400×860 |
530×320 |
370 |
|
CKSC-54/11-6% |
900 |
11/√3 |
6 |
381.1 |
47.24 |
8.07 |
830×400×920 |
530×320 |
400 |
|
CKSC-60/11-6% |
1000 |
11/√3 |
6 |
381.1 |
52.49 |
7.26 |
830×400×980 |
530×320 |
430 |
|
CKSC-72/11-6% |
1200 |
11/√3 |
6 |
381.1 |
62.99 |
6.05 |
860×500×1040 |
540×340 |
510 |
|
CKSC-90/11-6% |
1500 |
11/√3 |
6 |
381.1 |
78.74 |
4.84 |
920×500×1040 |
580×340 |
590 |
|
CKSC-108/11-6% |
1800 |
11/√3 |
6 |
381.1 |
94.49 |
4.03 |
920×500×1110 |
580×340 |
630 |
|
CKSC-120/11-6% |
2000 |
11/√3 |
6 |
381.1 |
104.99 |
3.63 |
1020×500×988 |
650×360 |
660 |
|
CKSC-144/11-6% |
2400 |
11/√3 |
6 |
381.1 |
125.98 |
3.02 |
1020×500×1090 |
650×360 |
730 |
|
CKSC-180/11-6% |
3000 |
11/√3 |
6 |
381.1 |
157.48 |
2.42 |
1250×500×1180 |
760×390 |
900 |
|
CKSC-216/10-6% |
3600 |
11/√3 |
6 |
381.1 |
188.93 |
2.017 |
1225×620×1310 |
520×540 |
1010 |
|
CKSC-240/10-6% |
4000 |
11/√3 |
6 |
381.1 |
209.92 |
1.815 |
1240×620×1350 |
520×540 |
1190 |
|
CKSC-252/10-6% |
4200 |
11/√3 |
6 |
381.1 |
220.41 |
1.729 |
1290×620×1355 |
520×540 |
1280 |
|
CKSC-288/10-6% |
4800 |
11/√3 |
6 |
381.1 |
251.9 |
1.513 |
1300×620×1400 |
520×540 |
1490 |
|
CKSC-360/10-6% |
6000 |
11/√3 |
6 |
381.1 |
314.88 |
1.21 |
1360×700×1480 |
600×620 |
1725 |
|
CKSC-396/10-6% |
6600 |
11/√3 |
6 |
381.1 |
346.37 |
1.1 |
1350×700×1520 |
600×620 |
1880 |
|
CKSC-480/10-6% |
8000 |
11/√3 |
6 |
381.1 |
419.84 |
0.908 |
1440×700×1450 |
600×620 |
2140 |
|
CKSC-540/10-12% |
4500 |
12/√3 |
12 |
831.4 |
216.5 |
3.84 |
1420×700×1570 |
600×620 |
2280 |
|
CKSC-576/10-12% |
4800 |
12/√3 |
12 |
831.4 |
230.94 |
3.6 |
1420×700×1570 |
600×620 |
2330 |
|
CKSC-600/10-12% |
5000 |
12/√3 |
12 |
831.4 |
240.56 |
3.456 |
1430×700×1640 |
600×620 |
2440 |
|
CKSC-648/10-12% |
5400 |
12/√3 |
12 |
831.4 |
259.8 |
3.2 |
1460×700×1650 |
600×620 |
2650 |
|
CKSC-720/10-12% |
6000 |
12/√3 |
12 |
831.4 |
288.67 |
2.88 |
1500×700×1690 |
600×620 |
3000 |
|
CKSC-840/10-12% |
7000 |
12/√3 |
12 |
831.4 |
336.78 |
2.469 |
1570×700×1700 |
600×620 |
3230 |
|
CKSC-960/10-12% |
8000 |
12/√3 |
12 |
831.4 |
384.89 |
2.16 |
1560×750×1800 |
650×670 |
3520 |
注:以上尺寸會隨設計和工藝更新而變化,我公司不做單獨解釋,詳情請致電我公司。
- 下一個:干式鐵芯啟動電抗器





